
消防應急照明和疏散指示裝置
聯系我們


消防應急照明和疏散指示裝置
消防應急照明和疏散指示系統由控制器(主機)、集中電源(供電),分配電裝置(分機)和燈具(疏散指示燈、應急照明燈)等幾部分組成。該系統配合火災報警控制器的使用,在危急時刻,能夠快速針對風向、就近出口、火災的走勢、人群密度做出分析,給出安全的疏散路徑指示,智能打開消防應急標志燈的指示方向以及應急照明燈,幫助建筑內的人群實時地選擇逃生路線,指引安全逃生方向,保障群眾的人身安全,為各商家擔心的安全問題解決了后顧之憂。應用范圍:
適用于機場、軌道交通、隧道、客運樞紐、醫院、學校、體育館、展覽館、星級酒店、高端商業樓盤等場所。訂貨范例:
具體型號:A-BLJC-2OEⅡ1W-A420應急照明控制器
| 類別 | 描述 |
| 輸入電源 | AC220V/50Hz, |
| 備用電源 | 閥控密封式鉛酸蓄電池,容量12V/12Ah,2節 |
| 應急時間 | 應急時間;切換時間 |
| 配置 | 工業PC板,2G內存,32G固態硬盤存儲 |
| 顯示操作 | 17寸液晶顯示器,LED指示燈; 人機接口為鼠標鍵盤,按鍵; |
| 打印機 | 熱敏打印機 |
| 下行總線 | 4個CAN總線:連接分配電裝置與集中電源 |
| 上行總線 |
1個CAN:預留,可用于連接火災報警控制器或其他用途; 1個RS485:預留,可用于連接火災報警控制器或其他用途; 1個RS232:預留,可用于連接火災報警控制器或其他用途; 1個以太網口:預留,可用于連接火災報警控制器或其他用途。 |
| 外殼材質 | 金屬 |
| 防護等級 | IP30 |
| 運行溫度 | 0℃-45℃ |
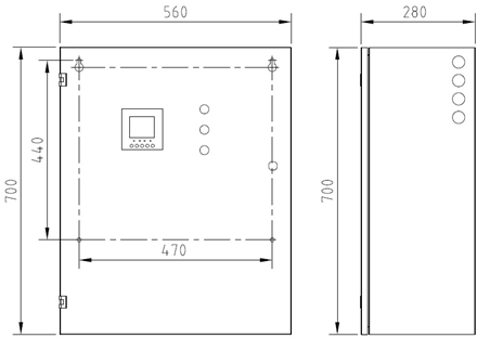
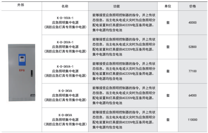
應急照明集中電源
| 類別 | 描述 |
| 輸入電源 | AC220V/50Hz, |
| 輸出電源 | DC36V,0.5kW |
| 備用電源 | 閥控密封式鉛酸蓄電池,容量12V/38Ah,4節 |
| 本機功耗 | 10W |
| 應急時間 | 應急時間;切換時間 |
| 顯示 | 點陣液晶顯示,LED指示燈 |
| 操作方式 | 按鍵,開關操作 |
| 通訊總線 | 上行CAN |
| 外殼材質 | 金屬 |
| 防護等級 | IP30 |
| 運行溫度 | -10℃-45℃ |
| 安裝方式 | 壁掛 |
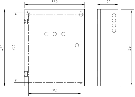
應急照明分配電裝置
| 類別 | 描述 |
| 輸入電源 | DC36V,0.5kW |
| 輸出電源 | 回路輸出電壓DC36V,電流≤2A |
| 通訊回路 | 5回路 |
| 本機功耗 | 10W |
| 應急時間 | 應急時間;切換時間 |
| 顯示 | LED指示(主電、應急、故障) |
| 通訊總線 | 上行CAN/下行ABUS |
| 外殼材質 | 金屬 |
| 防護等級 | IP30 |
| 運行溫度 | -10℃-45℃ |
| 安裝方式 | 壁掛 |
| 名稱 | 型號 | 內容 | 安裝方式 | 顯示 |
| 集中電源集中控制型消防應急標志燈具 | A-BLJC-2OEⅡ1W-A420 | 安全出口 | 吊掛 | 雙面 |
| A-BLJC-2LEⅡ1W-A420L | 左向指示 | |||
| A-BLJC-2LREⅡ1W-A420LR | 雙向指示 | |||
| A-BLJC-1OEⅡ0.5W-A400 | 安全出口 | 單面 | ||
| A-BLJC-1LEⅡ0.5W-A400L | 左向指示 | |||
| A-BLJC-1REⅡ0.5W-A400R | 右向指示 | |||
| A-BLJC-1LREⅡ0.5W-A400LR | 雙向指示 | |||
| A-BLJC-1OEⅡ0.7W-A400F | 樓層指示 | |||
| A-BLJC-1OEⅡ0.5W-A401 | 安全出口 | 壁裝 | ||
| A-BLJC-1LEⅡ0.5W-A401L | 左向指示 | |||
| A-BLJC-1REⅡ0.5W-A401R | 右向指示 | |||
| A-BLJC-1LREⅡ0.5W-A401LR | 雙向指示 | |||
| A-BLJC-1OEⅡ0.7W-A401F | 樓層指示 | |||
| A-BLJC-LEⅠ0.5W-A500L | 單向指示 | 地埋 | ||
| A-BLJC-LREⅠ0.5W-A500LR | 雙向指示 | |||
| 集中電源集中控制型消防應急照明燈具 | A-ZLJC-E3W-A600 | 照明 | 壁裝 | / |
| A-ZLJC-E3W-A601 | 嵌頂 | / | ||
| A-ZLJC-E6W-A602 | / |
應急照明集中電源

應急照明分配電裝置






工程案例
MORE+